Heatherwick Studio was commissioned to design a café building to replace a seafront kiosk in Littlehampton on England’s south coast. With the post-war rise in cheap package holidays having deprived the English seaside town of investment and downgraded many of them to cheap clichés, the studio’s client saw an opportunity to change this. Mother and daughter team Jane Wood and Sophie Murray, both residents of Littlehampton, were keen to do something different that might begin to re-establish the importance of the English seaside town.
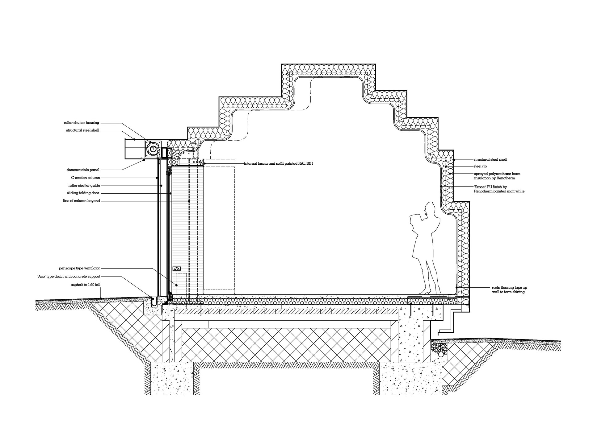
The studio saw the challenge as responding to the constraints of the narrow site by producing a long, thin building without flat, two-dimensional façades. The envelope is sliced diagonally into strips which wrap up and over the building, creating a layered protective shell, open to the seafront. The elevation looking onto the sea is fully glazed, protected at night by roller shutters concealed within the building’s geometry, the 30 centimetre width of the ribbons being the dimension of a shutter mechanism.
In contrast to the conventional white-washed seaside aesthetic, the building is raw and weathered, with the structural steel shell protected by a coating that permits rust-like patination to develop without affecting structural performance. A kiosk and cafeteria by day and a restaurant in the evening, the East Beach Cafe seats sixty.
East Beach Café won numerous awards including a prestigious RIBA National Award.





















