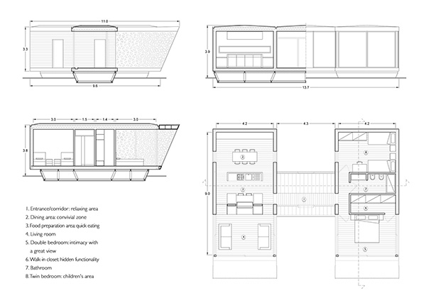
Architecture duo Micaela Colella and Maurizio Barberio designed Unboxed, a prefab wooden home that can be completely recycled. Unboxed is based on the typical Mediterranean house and represents a more sustainable alternative to masonry or frame structure buildings. The high standardization of the modules and their total prefabrication creates great flexibility. This goal is also achieved by splitting the building in several basic structural elements designed to be mounted with all the finishes and without thermal bridges. Thanks to an innovative foundation made of steel, which reduces or eliminates the need for excavation, the house is 100 percent recyclable and can be removed from the site. A low inclination roof allows for the installation of solar roof tiles capable of producing electricity and heat. The house also has a clear division between the living and the sleeping area with a glazed corridor/entrance in the middle that allows residents to re-establish contact with the surrounding environment (flow of time) during each passage.
Unboxed: Prefab Wooden House for the Mediterranean
By: admin | June - 4 - 2015























